保護猫喫茶 necoma

「保護猫喫茶 necoma」は学芸大学駅から徒歩十数分の住宅街の中にある、猫のいる喫茶と美術室である。

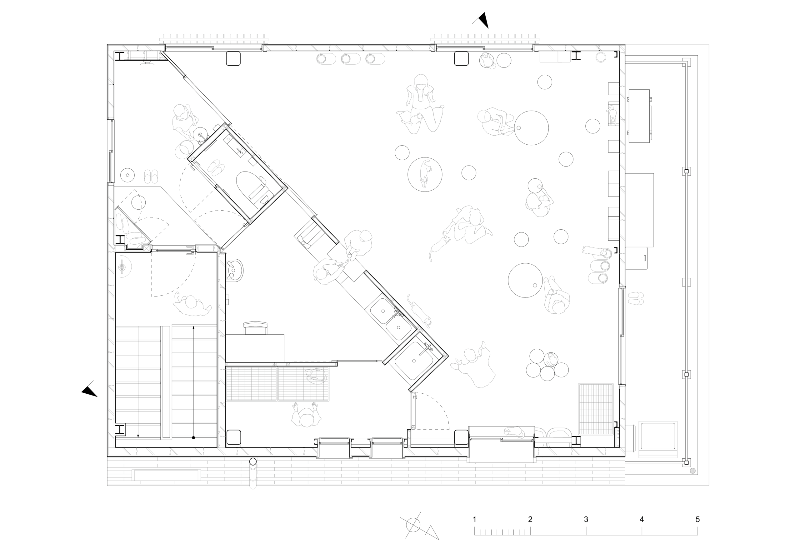
【既存建物について】

計画フロアは3階建テナントビルの最上階のため、斜線制限の切り欠きが内壁の三面に直接表出しており、平面的には単純だが立体的には少し複雑な形状であった。
開口部も多数あり、空間内の明るさも一様ではなかった。
それらがもたらす場の雰囲気の違いを捉えて、水廻りを集約した箱を既存躯体に対して斜めに据えた。

【斜めについて】

斜めの箱は鉤形の平面を分割し、玄関、ホール、厨房区画、飼養区画を箱の周囲に領域付けている。
それぞれの区画の仕切りはアクリルやパンチングメタルの建具とし、向こう側に意識が向くような設えとした。
ギャラリーからホールへ入ると、斜めの箱により逆パースの効いた空間が広がる。
また、猫の見守りのためスタッフの居る厨房からホールへの死角のない配置とした。
これにより箱の壁面はホール側のどこからも見えるため、イベント時のスクリーンやアート展示等にも活用される。

【白について】

猫や猫用グッズを引き立たせるため、床壁天井は全て白色とした。
最上階で周りがひらけているため、窓から入り込む景色や空の色の表情を映し込み刻一刻と印象の変化する空間となった。
また、建物の外から階段を登って店舗の中まで入るシークエンスを体験すると、共用部の階段室の壁紙が白色だったことも相まって、視界から徐々に色が無くなっていくような印象になった。
最初は「猫が主役に見えるように」と選択された白であったが、設計した範囲ではないこうした風景の連続が、建物外から店舗の中まで体験が地続きになるような効果を生んでいる。

【家具について】

スツール・机・キャットタワーはコンクリートの空配管などに使われるヴォイド管を素材としてnecomaのために特別に制作された。
同じ素材の円柱が、大きさの違いによって猫にとっては隠れ家やキャットタワーとして、人間にとってはスツールや机として使えるようになっている。
猫のために作った居場所がそのまま人間の居場所にもなっているような状態を目指した。
また、廃段ボールを用いた新たなリサイクルマテリアルの開発も行った。
段ボールを細かく裁断し水に溶かして押し固め乾燥させると、段ボールに含まれる糊の成分だけで固形化できることを発見した。
これを型枠に流し込むことで、コンクリートのように自由造形が可能となる。
この素材を利用し、壁付けのキャットステップを制作した。

【コンテクストとの距離感を設計する】

necomaという店名は「猫との間合いを考える」というコンセプトが元になっている。
内装においては間仕切壁や檻といった猫と人とを厳格に区切るような見えの要素を極力排することでこれを実現しようとした。
家具についても、段ボールという普段捨てられてしまうものを美しく再利用するということが、”保護猫として”ではなく純粋に猫として接する姿勢と呼応することを企図した。

設計・施工_TANK/福元成武+磯野信・小松素宏(明治大学構法計画研究室)
ディレクション_PAG.TOKYO Inc.
所在地_東京都目黒区
用途_店舗
設計期間_2020年3月〜4月
施工期間_2020年5月〜9月
竣工_2020年9月
延床面積_59.1㎡
写真_牧口英樹


Rescued-Cats Cafe, necoma

Rescued-Cats Cafe, necoma is a cafe and an art room with cats located in a residential area within walking distance from the Gakugeidaigaku Station in Tokyo.

-location

Located on the top floor of a three-story building, the walls are slanted inward on three sides due to building restrictions to allow a given amount of sunshine to adjacent property. Simple at a glance, complex in detail, light in the room is allowed in through multiple openings making illumination uneven throughout. Taking these elements into consideration, we boldly divided the room at an angle using a box integrating the plumbing space.

-slant

 This obliquely set plumbing space divides the plan into utility spaces for the entrance, hall, kitchen, and cat-raising room. The spaces are divided by punched metal and acrylic partitions allowing us glances into the other side.

Entering the hall from the gallery space, the obliquely divided room gives a perception of a space that widens out. In addition, this oblique arrangement eliminates blind corners from the kitchen allowing for excellent watch-out for the cats in the hall.

From the hall, the slanted wall is fully visible from end to end, and functions as a projection screen and display wall for the artwork.

-white

We painted the walls, floor, and ceiling in white to emphasize the cats and cat goods. The scenery and expressions of the color of the sky are excellently appreciated in the white space, creating a space with ever-changing impressions. Plus, though not a part of the original design intent, the staircase walls were white. It gives the impression of your surroundings gradually sublimating into colorless white as you walk into the building and climb the stairs. Although we initially chose white to showcase the cats, it added the effect of blending the surroundings outside the design into it and gives a sense of continuity from outside to within.

-furniture

All stools, desks, and cat towers were specially made for necoma, using void tubes used for plumbing concrete. Depending on its size, the same void tubes could be shared between cats and humans as shelters, cat towers, stools, and desks. We intended the design to be a shared space for cats and humans.

We also made cat steps that use our newly developed recycled cardboard blocks. Dissolving shredded cardboard and pressing it dry, we discovered that it binds by its original starch content only. Pouring it in a mold, the shape is freely defined as in poured concrete.

-designing intimacy with context

The name of the cafe “necoma” comes from the concept of “Thinking of the relation between ‘ma’ cats ‘neco’ and humans.” Embracing this in design, we removed discriminating elements; partitions, and cages that stand between cats and humans as much as possible. The beautiful waste cardboard-turned furniture also reflects the attitude of treating rescued cats as just “cats.”

Design and Construction_TANK Naritake Fukumoto + Makoto Isono, Motohiro Komatsu (Building System Design Laboratory at Department of Architecture, Meiji University)
Direction_PAG.TOKYO Inc.
Location_Meguro-ku, Tokyo, Japan
Photography_Hideki Makiguchi

掲載