8kumo
8kumo
8kumo
8kumo
8kumo
8kumo
8kumo
8kumo
8kumo
8kumo
8kumo
8kumo
8kumo

8kumo

40㎡の賃貸マンション改修工事。
将来的に一人暮らし用の賃貸物件として使われることを考慮し、生活方法に合わせ柔軟性を持たせるようなプランの提案を行った。
以下3点を軸に計画を行った。

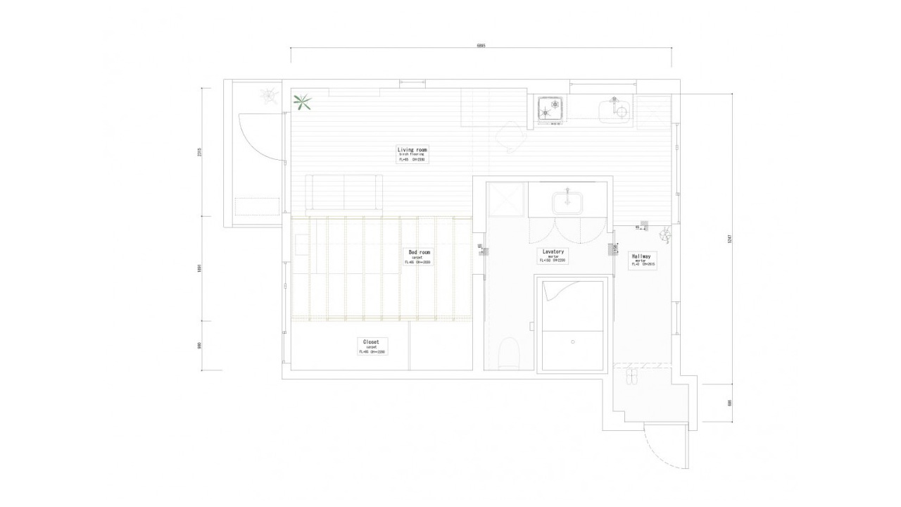
1.既存の水周り(3点ユニット)の狭さの解消
2.浴室、トイレ、キッチン、リビング、寝室の各部屋を分けつつも、回遊性のある間取り
3.住み手が手を加えられる空間

長らくメンテナンスもされていなかった既存の部屋は、壁は剥がれ、至る所が朽ちている状態で、とても人が住める空間ではなかった。
また、玄関にダイニングキッチンが面しており、そこからの狭い廊下が、寝室と和室と水周りを隔てていた。
小さな浴室と、部屋の真ん中にある洗濯置き場が空間をより狭く感じさせていた。
建物の構造壁が部屋の真ん中にあったため、その壁をうまく利用し空間を作っていく作業となった。

玄関から長く続く土間は洗面室とキッチンへと別れ、その先を進むと寝室へと合流する。
寝室は、垂木と合板で作られている。
照明器具が天井から寝室の垂木の間を通り室内へ降りてくるため、夜になると全体的に大きな照明器具のような印象を作った。
寝室とその他の室の天井高を変えることで、別の物を作り付けたような、作り途中のような寝室を作った。
この垂木部分を如何に使うかは住み手に委ねている。


This project is the renovation of a small room in a small building. This will be utilized as a rental room for a single woman. I considered that the room should have flexibility, and the tenant can arrange it as she likes.

I started planning with three key ideas;

1. Create enough space for a lavatory.
2. Make the floor plan flexible but divide rooms with functionality.
3. Leave some parts for the tenant to arrange as she likes.

Before the renovation, the space was in disrepair and neglect; the walls were rotting and crumbling, unlivable.

In addition to this condition, narrow passageways divided each space into multiple limited rooms. The bathroom was tiny, and the washing machine was next to the closet in the Japanese tatami room. A structural wall had to be taken into consideration as well.

[Make enough space for a lavatory.]
This lavatory is more prominent in modern style, with a separate bathroom and washstand. When both doors are open, it is a hallway to the entrance.

[Make floor plan to be migratory but divide rooms with function.]
There are two ways to go to the bedroom, one is through the kitchen space, and the other is via the lavatory. The entrance and connecting hallway is a ‘doma,’ a little longer than a normal entranceway; these are utilized as a hallway, small garden area, or cloak.
*The doma is the entrance hall situated at the same level as the exterior grounds—a typical traditional Japanese entranceway.

[Leave some parts for the tenant to arrange as she likes.]
There are no doors for the bedroom or walk-in closet.
These walls and ceiling have an unfinished look, and I leave it to the tenant’s taste as to how to utilize these rooms.
In the evening, the bedroom light casts long decorative shadows from the rafters and surrounding frame.

Design_TANK(Midori Muramatsu)
Construction_Chiyoda Sobi
Location_Meguro-ku, Tokyo Japan
Photography_TANK
2013.04